Dokument

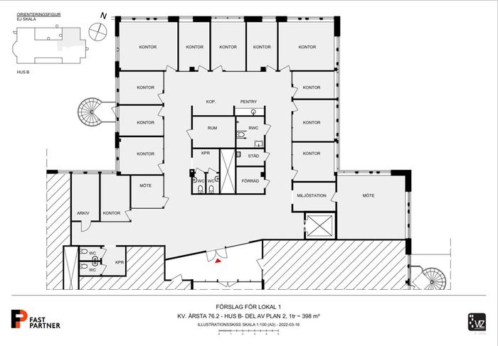
Årsta 76.2 - Hus B- Del av plan 2, 1tr- Lokal 1- 398kvm - 220316

Fyrisborgsgatan 3

Övrigt, 398 m2, Uppsala

Representativ fastighet i mycket bra läge i Fyrislund.
Till lokalen hör en egen lastkaj med lager i markplan.
Lokalerna erbjuder flexibel planlösning med fönster åt flera väderstreck vilket ger lokalerna ett härligt ljusinsläpp.

Omgivning

Fyrislund är ett område som kännetecknas av företag inom läkemedelsbranschen. I området finns även handel, industri och kontor.
Området har även nära till grönområdet och trevliga promenadstråk.Flertalet lediga parkeringsplatser i direkt anknytning till fastigheten.

Kommunikationer

Från fastigheten finns mycket goda kommunikationer till Uppsala centrum. Cirka vart 10 minut går en buss från området under normala kontorstider. Fastigheten har även närhet till E4:ans infart till Uppsala vilket möjliggör ger närhet till Stockholm och Arlanda.

Service

I området finns flertalet uppskattade restauranger. I Boländernas handelsområde finns ett brett serviceutbud med företax som ex Ikea, Bauhaus, Rusta, max med flera andra.

Övrigt

Fastpartner är ett börsnoterat fastighetsbolag som äger och förvaltar fastigheter långsiktigt med egen personal. Vår affärsidé är att skapa goda och långvariga relationer med våra hyresgäster genom att vara lyhörda för våra hyresgästers önskemål samt engagerade i förvaltningen och utvecklingen av våra fastigheter. Vårt fastighetsbestånd är koncentrerat till Stockholm, men vi har också lokaler på ett flertal expansiva orter i Sverige, bla Göteborg, Malmö, Norrköping, Uppsala och Gävle. Vi tycker det är kul att arbeta med den tekniska utvecklingen av våra fastigheter. Vi ser att det både finns en vinning för miljön och plånboken i att vara en engagerad hyresvärd. Vår organisation genomsyras av en entreprenörsanda och har korta beslutsvägar vilket uppskattas av våra hyresgäster. Välkommen till Fastpartner!

Kontakta Annonsör

Axel Ward

Axel Ward