Solkraftsvägen 35

Kontor/Lager/Övrigt, 235 m2, Stockholm, Skrubba

Hyra: 0 kr/kvm/år

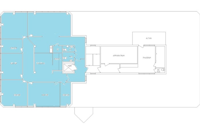
Kontor- och lagerlokal om 235 kvm med lasthiss uthyres!

Välkommen till Skrubba och lokalen om 235 kvm!

Kombinationslokalen om totalt 235 kvm belägen i Skrubba industriområde har en lasthiss med access direkt in i lokalen. Ytan kan disponeras som lager eller/och kontor beroende på hur ert behov ser ut.

Lokalen kan anpassas i samråd med tillträdande hyresgäst.

Hör gärna av er för mer info eller för att boka en visning!

Kommunikationer

Fastigheten är belägen i Skrubba Industriområde med närhet till skog, restaurang och gym. Busshållsplats inom gångavstånd från fastigheten finns med flertalet busslinjer med täta avgångar mot Gullmarsplan där man vidare når tunnelbanans gröna linje. Resan till Gullmarsplan tar ca 15 min. I anslutning till busshållsplatsen finns en pendlarparkering.

Med bil nås fastigheten från Nynäsvägen via Tyresövägen (229) och sedan Gudöleden alt. Skrubba Malmväg. Resan från Stockholm city tar knappt 20 min.

Service

Fastigheten är belägen i Skrubba Industriområde med närhet till skog, restaurang och gym. Busshållsplats inom gångavstånd från fastigheten finns med flertalet busslinjer med täta avgångar mot Gullmarsplan där man vidare når tunnelbanans gröna linje. Resan till Gullmarsplan tar ca 15 min. I anslutning till busshållsplatsen finns en pendlarparkering.

Med bil nås fastigheten från Nynäsvägen via Tyresövägen (229) och sedan Gudöleden alt. Skrubba Malmväg. Resan från Stockholm city tar knappt 20 min.

Kontakta Annonsör

Hanna Larson

Hanna Larson