Sibyllegatan 81

Kontor/Övrigt, 140 m2, Stockholm, Östermalms Stadsdelsområde

Hyra: Kontakta lokalförmedlaren för mer info.

Attraktivt beläget vindskontor på Östermalm med närhet till allt vad Östermalm har att erbjuda!

Här erbjuds ett representativt kontor att trivas i!

Fastigheten
Huset uppfördes 1894 och renoverades 2006 då bl.a. stambyten gjordes, fasaden renoverades och ventilationen sågs över.

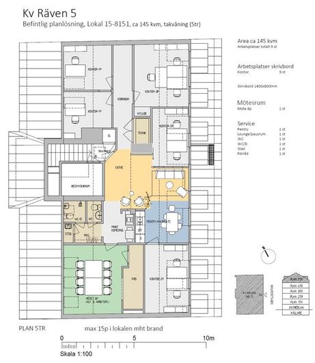
Planlösning
Lokalen har en rumsindelat planlösning som fördelas på totalt 6 rum samt pentry i öppen planlösning. De två största rummen ligger på vänster sida när man stiger in i lokalen. Det ena nyttjas med fördel som konferensrum. Lokalens pentry ligger i lokalens hjärta i anslutning till entrén. På lokalens högra sida finns ytterligare 4 arbetsrum.

Lokalen har två fräscha helkaklade wc varav en med dusch och takfönster, ett städförråd samt ett större förråd.

Lokalen lämpar sig för kontorsverksamhet, showroom eller en kombination av båda.

Omgivning

Parkeringsmöjligheter/garage:

Ett mindre parkeringsgarage finns i huset, för närvarande är det kö för plats. Parkeringsmöjligheter även på kringliggande gator enligt stadens tariff och externa parkeringsgarage. Det är relativt lätt att hitta lediga platser utomhus längs Valhallavägens Allé. Stockholms Parkering har ett parkeringshus på Östermalmsgatan 48.

Planlösning

Byggår:

1894

Renoveringsår:

2006

Kommunikationer

Mycket bra kommunikativt läge med gångavstånd till inte mindre än tre t-banestationer (Östermalmstorg, Stadion och Karlaplan). Flertalet busslinjer passerar nära; 1:an (Stora Essingen-Frihamnen), 4:an (Radiohuset-Gullmarsplan) och 72an (Karolinska Sjukhuset-Östhammarsgatan).

Service

Närservice:

All tänkbar service inom gångavstånd. I närområdet finns en mängd trevliga restauranger och med alla tänkbara smakriktningar. Det finns massor av trevliga lunchställen och barer längs efter Grev Turegatan, Strandvägen och kring Karlaplan och Östermalmstorg. På Nybrogatan finns ett gediget utbud av trevliga små butiker och systembolag. Du har också gångavstånd till Dramatens kulturutbud.

Övrigt

Övrigt:

Fastighetsägaren har fri prövningsrätt vad gäller val av hyresgäst och verksamhet. Vänligen respektera hyresvärdens önskemål om att all kontakt respektive visningar skall ske via mäklaren.

Hiss:

Ja

Tillträde:

Enligt överenskommelse.

Hyresinformation:

Kontakta lokalförmedlaren för mer info.

Kontakta Annonsör

Hanna Friman

Hanna Friman