Sankt Göransgatan 126

Butik/Restaurang & café/Övrigt, 160 m2, Stockholm, Stadshagen

Fantastisk möjlighet etablera en lunchrestaurang i ett läkarhus där 300 personer arbetar och många personer dagligen besöker! Ingen överlåtelseavgift!

Här finns mjlighet till både fikaförsäljning, takeaway, lunch- och middagsservering samt även till att  bli leverantör till husets konferenslokal!

Lokalen är belägen i bv i en av Kungsholmens arkitektoniskt sett mest spännande byggnader bestående av 15 våningar ovan mark. Lokalen har en egen utgång mot en bra yta för uppställning av bord och stolar för att skapa en fantastik uteservering. Denna uteplats har ett trevligt och rätt ostört läge en bra bit ifrån gatan. Det finns ytterligare en entré till lokalen i  husets huvudentré.

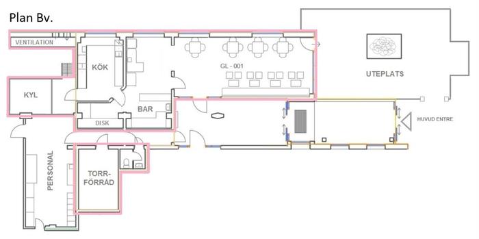
Planlösningen utgörs av en större yta med plats för ca 35-40 sittande gäster samt plats för bar och försäljning. Ett köksrum, ett diskrum, yta för kylrum samt ett rum för torrförråd vilket eventuellt kan avdelas för att skapa ett omklädningsrum. Eventuellt kan det gå att få nyttja ytterligare yta för personalutrymmen. Det finns möjlighet att hyra ytterligare lagerytor.

Lokalen har ett eget ventilationsaggregat.

Området är mycket expansivt och idag arbetar det ca 300 personer i huset som längtar efter att få en restaurang i huset. Då detta är ett läkarhus, kommer det även många besökare till huset varje dag. Det finna även kringliggande kontorsfastigheter som skulle uppskatta möjligheten till att köpa fika och luncher här. Lokalen har alla förutsättningar för att kunna bli en ypperlig restaurang.

På sikt går det även att utveckla verksamheten till att även erbjuda kvällsservering. I huset på plan 15 finns en konferenslokal, och det kommer att finns möjligheter att bli hovleverantör till konferenslokalen när hyresgästerna i huset bokar denna samt för den drivne restauratören att även kunna anordna egna event här.

Hyresvärdens önskemål är en restaurang som serverar hälsosam kost med toppkvalitet, ett koncept som även skulle uppskattas av husets hyresgäster och många besökare då detta är ett läkarhus i världsklass.  

Övrigt: Hyresvärden kommer att anpassa ytskikten och ombesörja dragning av el, vatten och avlopp. Hyresgästen som skall hyra lokalen måste var beredd på att investera i köksutrustning och fettavskiljare, men i gengäld utgår ingen överlåtelseavgift. Hyresvärden har fri prövningsrätt vad gäller val av hyresgäst och lunchkoncept.

Omgivning

Omgivning/natur:

För den aktive finns, Stadshagens IP och Kristinebergs IP med grus- och gräsplaner samt löparbanor och motionsslinga. I närområdet finns också gott om trevliga promenadstråk längs efter Branhusviken, Karlbers- och Ulvsundasjöns glittrande vatten.

Företag i närheten:

I närheten är bland andra Electrolux och Sankt Görans sjukhus.

Parkeringsmöjligheter/garage:

Parkering finns på fastigheten, på angränsande gator enligt stadens tariff samt i kringliggande parkeringshus. Lastkaj för transporter finns. Cykelrum kommer att ordnas i huset och cykelparkering med cykelställ finns utanför huvudentrén.

Skyltläge:

Ja!

Planlösning

Byggår:

1955

Renoveringsår:

2020

Kommunikationer

Mycket bra kommunikationer med kort gångavstånd till Stadshagens tunnelbanestation där blå linje passerar. Det är även gångavstånd till Fridhemsplan med tunnelbanans gröna och röda linje. Busslinje 56 stannar ca 170 m utanför porten och linjerna 1, 3, 4, 54 och 62 passerar Fridhemsplan inom några minuter promenadavstånd från fastigheten.

Service

Närservice:

I närområdet finns både restauranger, bank, post, och all tänkbar service. Inom gångavstånd finns exempelvis Fridhemsplan och Västermalmsgallerian med all tänkbar service. Många bra och stora matbutiker vid Fridhemsplan samt populära Ica Maxi på Lindhagensgatan 118. Det är även gångavstånd till flera gym för den träningsbenägne.

Övrigt

Övrigt:

Hyresvärden har fri prövningsrätt vad gäller val av hyresgäst och lunchkoncept.

Kontakta lokalförmedlaren Hanna Friman för mer info; maila gärna till [email protected] eller messa/ring på mob: 0733-24 35 23.

Uppvärmning:

Fjärrvärme.

Ventilation:

Mekanisk ventilation (FTX).

Hiss:

Ja

Tillträde:

Enligt överenskommelse.

Prisinformation:

Kontakta lokalförmedlaren mer information. I hyran ingår värme och fastighetsskatt. Ingen överlåtelseavgift utgår!

I hyran ingår:

Värme, skatt

Kontakta Annonsör

Hanna Friman

Hanna Friman