Sankt Göransgatan 126
Stadshagen, Stockholm, 280 m2
Chans att hyra husets mest exklusiva mottagningslokal som anpassats för estestik, kirurgi och vård med två förberedda operationssalar! För vård...
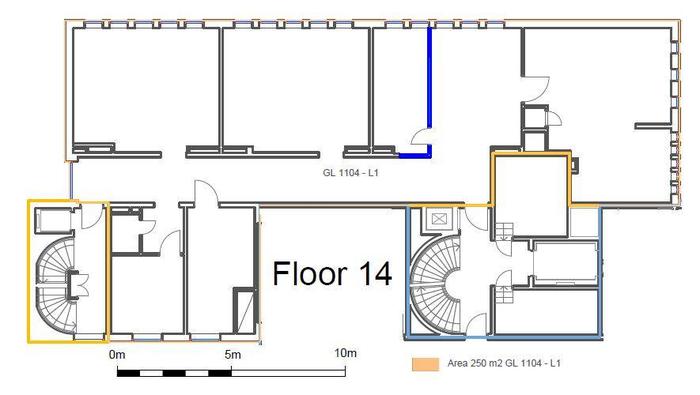
Kontor/Övrigt, 250 m2, Stockholm, Stadshagen
Hyra: Kontakta annonsören
Wonna Tower är en av Kungsholmens arkitektoniskt sett mest spännande byggnader bestående av 14 våningar ovan mark. För den som vill avnjuta utsikten över staden i solsken finns husets bokningsbara takterrass med utekök att tillgå. På sikt planeras en lunchrestaurang att öppna i husets entréplan. För rekreation för husets hyresgäster finns ett saltvattensspa med duschar, omklädningsrum och en infraröd bastu längst ner i huset. I byggnaden finns även en mycket fin bokningsbar konferenslokal tillgänglig för husets hyresgäster. Huvudentrén har anpassats med exklusiva materialval och armaturer, pelare med gulddekorer samt bänkar där man kan slå sig ner. Direkt när man kommer in i huvudentrén möts man av klassisk musik som gör upplevelsen av Wonna Tower till något alldeles extra. Tre hissar försörjer huset och även hisskorgarna har anpassats med exklusiva ytskikt.
Om lokalen
Den sista lokalen på plan 15 med spektakulär utsikt och industrikaraktär som tilltalar många verksamheter finns fortfarande tillgänglig. Lokalen har industrikaraktär såsom generös takhöjd med synliga installationer vilket inger en känsla som fastighetsägaren strävar efter att bibehålla.
Planlösningen utgörs idag till största del av en rumsindelad planlösning och fastighetsägaren är öppen för att anpassa lokalen för att tillmötesgå den blivande hyresgästens önskemål. Lokalen kommer att hyras ut i nyproduktionsskick vad gäller ytskikt samt standard på våtrum och pentry men gärna med bibehållen industrikaraktär. Här kommer du att få möjlighet skapa din drömlokal från grunden där medarbetarna definitivt kommer att trivas!
Detta kommer att bli en unik lokal som kan attrahera kreativa bolag som exempelvis reklambyråer, arkitekter eller mediabolag som önskar en annorlunda lokal. Lokalen passar för kontorsverksamhet alternativt showroom. Det fungerar också utmärkt med omomsade verksamheter här och lokalen är tillgänglighetsanpassad.
Bredband: Stokab är anslutet till fastigheten vilket gör det möjligt att använda sig av fiberoptiskt nätverks samt välja bredbandsleverantör.
Uppvärmning:Fjärrvärme. Ventilation: Mekanisk ventilation (FTX).
För den aktive finns, Stadshagens IP och Kristinebergs IP med grus- och gräsplaner samt löparbanor och motionsslinga. I närområdet finns också gott om trevliga promenadstråk längs efter Branhusviken, Karlbers- och Ulvsundasjöns glittrande vatten.
Parkeringsmöjligheter/garage:Besöksparkering finns på fastigheten, på angränsande gator enligt stadens tariff samt i kringliggande parkeringshus. Lastkaj för transporter finns. Cykelrum kommer att ordnas i huset och cykelparkering med cykelställ finns utanför huvudentrén.
Skyltläge:Ja
1955
Renoveringsår:2020
Våningsplan:15
Mycket bra kommunikationer med kort gångavstånd till Stadshagens tunnelbanestation där blå linje passerar. Det är även gångavstånd till Fridhemsplan med tunnelbanans gröna och röda linje. Busslinje 56 stannar ca 170 m utanför porten och linjerna 1, 3, 4, 54 och 62 passerar Fridhemsplan inom några minuter promenadavstånd från fastigheten.
I närområdet finns både restauranger, bank, post, och all tänkbar service. Inom gångavstånd finns exempelvis Fridhemsplan och Västermalmsgallerian med all tänkbar service. Många bra och stora matbutiker vid Fridhemsplan samt populära Ica Maxi på Lindhagensgatan 118. Det är även gångavstånd till flera gym för den träningsbenägne.
Ja
Kontraktlängd:Långtidskontrakt
Kontrakttyp:Förstahandskontrakt
Tillträde:Enligt överenskommelse.