Sankt Göransgatan 126

Övrigt, 280 m2, Stockholm, Stadshagen

Hyra: Hyresnivån kommer att ligga kring 5000 kr/kvm i färdiganpassat skick. Ingen fastighetsskatt tillkommer idag och lokalen kan hyras omomsad utan momskopensation. Värme ingår i hyran.

Mottagningslokal i Wonna Tower - Stockholms läkarhus i världsklass - med spektakulär arkitektur! Lokalen kommer att anpassas exklusivt efter önskemål!

Lokalen kommer att anpassas utifrån din verksamhets behov!

Byggnaden uppfördes år 1955 och renoverades år 2020.
Huvudentrén har anpassats med exklusiva materialval och armaturer, pelare med gulddekorer, stuckatur samt bänkar där man kan slå sig ner. Tre hissar försörjer huset och även hisskorgarna har anpassats med exklusiva ytskikt. Cykelrum och godkänt skyddsrum finns samt cykelställ utanför huvudentrén.

Chans att etablera sin mottagning i Wonna Tower, en av Kungsholmens arkitektoniskt sett mest spännande byggnader bestående av 15 våningar ovan mark. För den som vill avnjuta utsikten över staden i solsken finns husets bokningsbara takterrass med utekök att tillgå. Mitt emot takterrassen finns den fantastiska konferenslokalen och i källaren ett spa med IR-bastu, träningsmaskiner och relax - bokningsbara för husets hyresgäster! Det finns planer på en frukost- och lunchrestaurang i husets entréplan.

Om lokalen
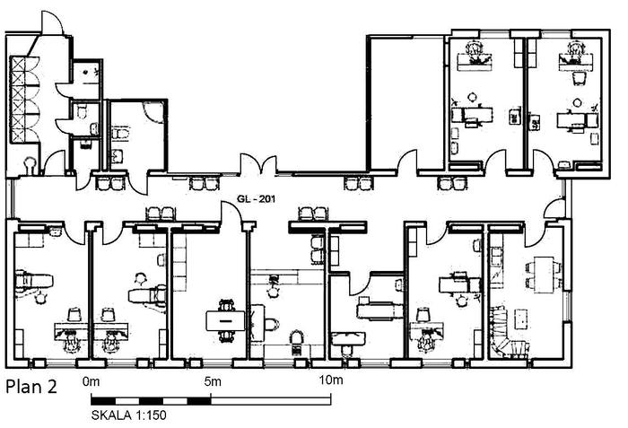
Lokalen är belägen två trappor upp från entréplan. Lokalen kan passa för vårdverksamheter såväl som för ett kontor. Planlösningen är idag rumsindelad med möjlighet till 9 behandlingsrum, omklädningsrum och pentry. Handfat finns i rummen.

Lokalen kommer att få en väldigt fin standard i nyproduktionsskick vad gäller både ytskikt, pentry och våtutrymmen.

Här har du möjlighet att skapa din drömlokal ifall du söker en lokal utöver det vanliga där din personal definitivt kommer att trivas!

Uppvärmning: Fjärrvärme. Ventilation: Mekanisk ventilation (FTX).

Bredband: Stokab är anslutet till fastigheten vilket gör det möjligt att använda fiberoptiskt nätverk.

Omgivning

Omgivning/natur:

För den aktive finns, Stadshagens IP och Kristinebergs IP med grus- och gräsplaner samt löparbanor och motionsslinga. I närområdet finns också gott om trevliga promenadstråk längs efter Branhusviken, Karlbergs- och Ulvsundasjöns glittrande vatten.

Företag i närheten: I närheten är bland andra Electrolux och Sankt Görans sjukhus.

Parkeringsmöjligheter/garage:

Det finns parkering på fastigheten, på angränsande gator enligt stadens tariff samt i kringliggande parkeringshus. Lastkaj för transporter finns.

Skyltläge:

Ja.

Planlösning

Byggår:

1955

Renoveringsår:

2020

Våningsplan:

2

Kommunikationer

Mycket bra kommunikationer med kort gångavstånd till Stadshagens tunnelbanestation där blå linje passerar. Det är även gångavstånd till Fridhemsplan med tunnelbanans gröna och röda linje. Busslinje 56 stannar ca 170 m utanför porten och linjerna 1, 3, 4, 54 och 62 passerar Fridhemsplan inom några minuter promenadavstånd från fastigheten.

Service

Närservice:

I närområdet finns både restauranger, bank, post, och all tänkbar service. Inom gångavstånd finns exempelvis Fridhemsplan och Västermalmsgallerian med all tänkbar service. Många bra och stora matbutiker vid Fridhemsplan samt populära Ica Maxi på Lindhagensgatan 118. Det är även gångavstånd till flera gym för den träningsbenägne.

Övrigt

Övrigt:

Hyresvärden har fri prövningsrätt vad gäller val av hyresgäst och verksamhet.

Hiss:

Ja

Tillträde:

Omgående eller efter ök.

Hyresinformation:

Hyresnivån kommer att ligga kring 5000 kr/kvm i färdiganpassat skick. Ingen fastighetsskatt tillkommer idag och lokalen kan hyras omomsad utan momskopensation. Värme ingår i hyran.

Kontakta Annonsör

Hanna Friman

Hanna Friman