Nymärsta Torg 5

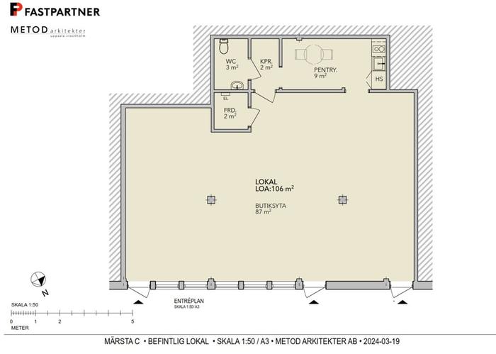
Övrigt, 106 m2, Stockholm, Märsta

Denna välplacerade lokal om totalt 106 kvm ligger precis vid ett gångstråk i Märsta Centrum, mittemot gymmet Fitness 24/7 och granne med bland annat Willys. Lokalen har en butiksdel om cirka 87 kvm och en övrig yta som lämpar sig för lager, personalutrymmen eller kontor.
Tack vare sin öppna och lättanvända planlösning passar lokalen utmärkt som butik, showroom eller kontor. Här får du ett synligt och lättillgängligt läge med goda grannar och ett jämnt flöde av människor i rörelse under dagarna.
Välkommen att boka en visning!

Omgivning

I Märsta Centrum hittar du allt samlat, vare sig det rör kontakt med kommunen, service, shopping, restauranger eller nöjen.
Märsta och Sigtuna är en växande och attraktiv region både som plats att bo och leva på och som etableringsplats för företag. I och med de nya satsningar som Fastpartner gör ökar den attraktionskraften ytterligare.Besöksparkering gratis, 2 tim/dygn, för registrerade medlemmar 4 tim./dygn
Det finns flertal parkeringsplatser att hyra i närheten till fastigheten.

Kommunikationer

Märsta är centralort i Sigtuna kommun och ligger nästan mittemellan Stockholm och Uppsala, med direkt närhet till E4:an. Restid till Stockholm med bil cirka 35 minuter, till Uppsala cirka 30 minuter och Arlanda cirka 10. Från Märsta station går pendeltåg till Stockholms centralstation. Även fjärrtågen mellan Stockholm och Uppsala stannar i Märsta. Bra bussförbindelser finns till Sigtuna, Valsta, Steningehöjden och Arlanda. Gångavstånd från Märsta station till Märsta Centrum. Buss trafikerar sträckan och tar ett par minuter. Samtliga större busslinjer passerar dessutom Märsta C.

Service

Märsta centrum erbjuder ett brett utbud av handel, tjänster och restauranger. Det är den centrala handelsplatsen i Sigtuna.

Kontakta Annonsör

Lisa Akuetteh

Lisa Akuetteh