Du kan se dina sparade lokaler genom att klicka på "Sparade lokaler" i menyn högst upp.
Nymärsta Gränd 5
Övrigt,
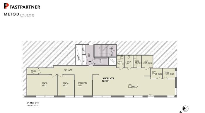
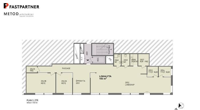
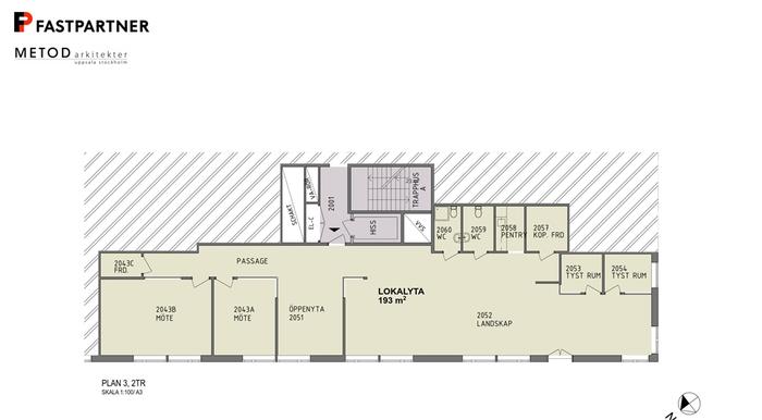
193 m2,
Stockholm, Märsta
Välkommen till ett modernt och fräscht kontor om 193 kvm i Märsta Centrum, beläget på plan 3 (2 trappor upp). Lokalen erbjuder en välbalanserad kombination av öppen planlösning och flera mindre mötes- eller arbetsrum, vilket ger både flexibilitet och god funktionalitet för olika typer av verksamheter.
Lokalen är nyligen renoverad och håller en fräsch standard med stora fönster som ger ett generöst ljusinsläpp och skapar en trivsam arbetsmiljö. Perfekt för företag som söker en representativ och bekväm arbetsplats mitt i centrum, med närhet till service, kommunikationer och parkeringsmöjligheter.
Välkommen att boka en visning!
Omgivning
Märsta Centrum är en levande knutpunkt med butiker, service, vårdcentral, gym och restauranger. Här rör sig människor hela dagen tack vare närheten till kollektivtrafiken.
Märsta och Sigtuna är en växande och attraktiv region både som plats att bo och leva på och som etableringsplats för företag. I och med de nya satsningar som Fastpartner gör ökar den attraktionskraften ytterligare.Besöksparkering gratis, 2 tim/dygn, för registrerade medlemmar 4 tim./dygn
Det finns flertal parkeringsplatser att hyra i närheten till fastigheten.
Kommunikationer
Märsta är centralort i Sigtuna kommun och ligger nästan mittemellan Stockholm och Uppsala, med direkt närhet till E4:an. Restid till Stockholm med bil cirka 35 minuter, till Uppsala cirka 30 minuter och Arlanda cirka 10. Från Märsta station går pendeltåg till Stockholms centralstation. Även fjärrtågen mellan Stockholm och Uppsala stannar i Märsta. Bra bussförbindelser finns till Sigtuna, Valsta, Steningehöjden och Arlanda. Gångavstånd från Märsta station till Märsta Centrum. Buss trafikerar sträckan och tar ett par minuter. Samtliga större busslinjer passerar dessutom Märsta C.
Service
Märsta centrum erbjuder ett brett utbud av handel, tjänster och restauranger. Det är den centrala handelsplatsen i Sigtuna.