Du kan se dina sparade lokaler genom att klicka på "Sparade lokaler" i menyn högst upp.
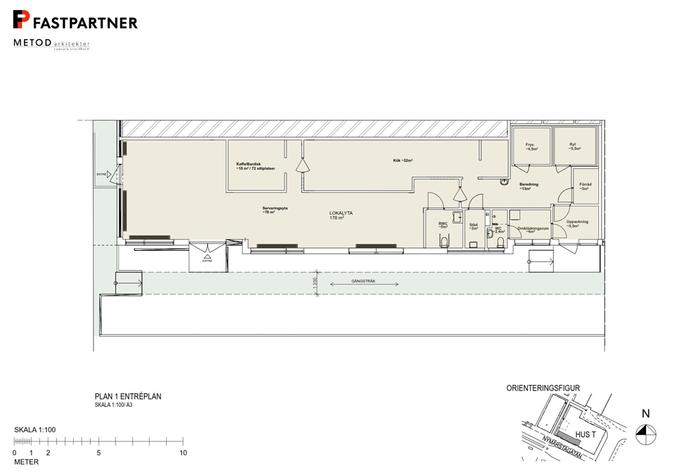
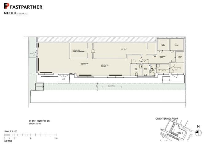
Nymärsta Gränd 5
Övrigt,
178 m2,
Stockholm, Märsta
Välkommen till en attraktiv restauranglokal med utmärkt läge i centrum. Lokalen har stora fönsterpartier som ger både ett härligt ljusinsläpp och god exponering mot det livliga gångstråket utanför. Här passerar många människor dagligen, vilket skapar ett starkt kundflöde hela dagen.
Det finns även möjlighet till uteservering direkt utanför entrén perfekt för att dra nytta av det naturliga flödet under vår och sommar. Lokalen lämpar sig väl för restaurang, café eller annan serveringsverksamhet och erbjuder en bra planlösning med plats för både sittplatser och köksdel. Ett perfekt tillfälle för dig som vill etablera din verksamhet i ett levande centrumläge.
Omgivning
I Märsta Centrum hittar du allt samlat, vare sig det rör kontakt med kommunen, service, shopping, restauranger eller nöjen.
Märsta och Sigtuna är en växande och attraktiv region både som plats att bo och leva på och som etableringsplats för företag. I och med de nya satsningar som Fastpartner gör ökar den attraktionskraften ytterligare.Besöksparkering gratis, 2 tim/dygn, för registrerade medlemmar 3 tim./dygn
Det finns flertal parkeringsplatser att hyra i närheten till fastigheten.
Kommunikationer
Märsta är centralort i Sigtuna kommun och ligger nästan mittemellan Stockholm och Uppsala, med direkt närhet till E4:an. Restid till Stockholm med bil cirka 35 minuter, till Uppsala cirka 30 minuter och Arlanda cirka 10. Från Märsta station går pendeltåg till Stockholms centralstation. Även fjärrtågen mellan Stockholm och Uppsala stannar i Märsta. Bra bussförbindelser finns till Sigtuna, Valsta, Steningehöjden och Arlanda. Gångavstånd från Märsta station till Märsta Centrum. Buss trafikerar sträckan och tar ett par minuter. Samtliga större busslinjer passerar dessutom Märsta C.
Service
Märsta centrum erbjuder ett brett utbud av handel, tjänster och restauranger. Det är den centrala handelsplatsen i Sigtuna.
Kontakta Annonsör
Utvalda lokaler från Fastpartner AB
i Märsta - Stockholm