Du kan se dina sparade lokaler genom att klicka på "Sparade lokaler" i menyn högst upp.
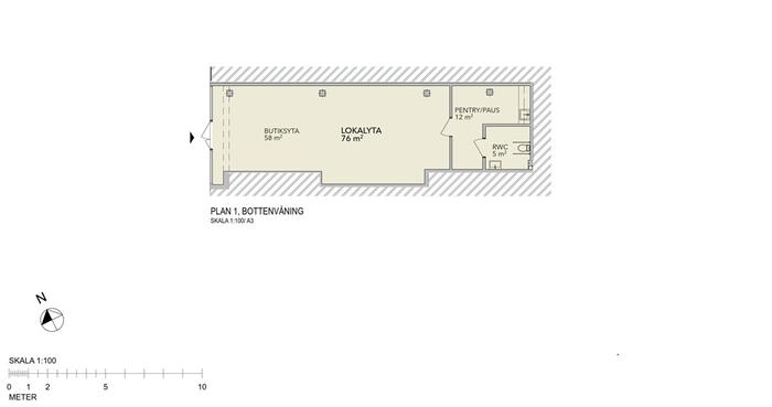
Nymärsta gränd 3
Övrigt,
76 m2,
Stockholm, Sigtuna
Nu har du möjlighet att etablera din verksamhet i en mindre helt nyrenoverad butikslokal med utmärkt läge i Märsta Centrum, precis intill Normal. Lokalen har stora fönsterpartier som ger ett fint ljusinsläpp och mycket goda exponeringsmöjligheter mot centrumstråket.
Det här är en idealisk plats för dig som söker en synlig och lättillgänglig lokal i ett levande centrum med ett stabilt kundflöde. Lokalen passar utmärkt för butik eller serviceverksamhet och är tillgänglig för inflytt.
Omgivning
I Märsta Centrum hittar du allt samlat, vare sig det rör kontakt med kommunen, service, shopping, restauranger eller nöjen.
Märsta och Sigtuna är en växande och attraktiv region både som plats att bo och leva på och som etableringsplats för företag. I och med de nya satsningar som Fastpartner gör ökar den attraktionskraften ytterligare.Besöksparkering gratis, 2 tim/dygn, för registrerade medlemmar 4 tim./dygn
Kommunikationer
Märsta är centralort i Sigtuna kommun och ligger mellan Stockholm och Uppsala, med direkt närhet till E4:an. Restid till Stockholm med bil cirka 35 minuter, till Uppsala cirka 30 minuter och Arlanda cirka 10. Från Märsta station går pendeltåg till Stockholms centralstation. Även fjärrtågen mellan Stockholm och Uppsala stannar i Märsta. Bra bussförbindelser finns till Sigtuna, Valsta, Steningehöjden och Arlanda. Gångavstånd från Märsta station till Märsta Centrum. Buss trafikerar sträckan och tar ett par minuter. Samtliga större busslinjer passerar Märsta C.