Linta gårdsväg 5

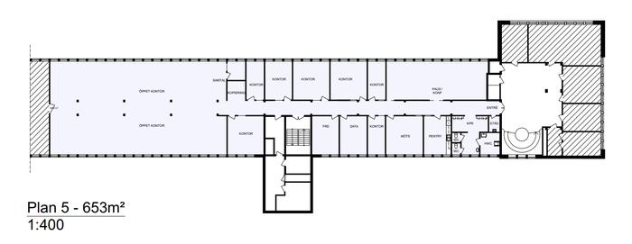
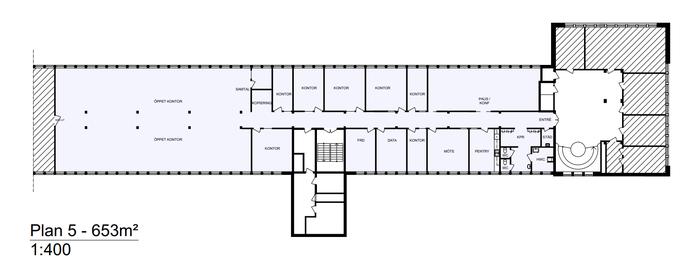
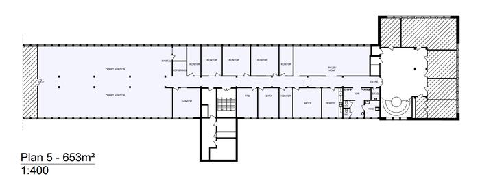
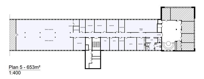
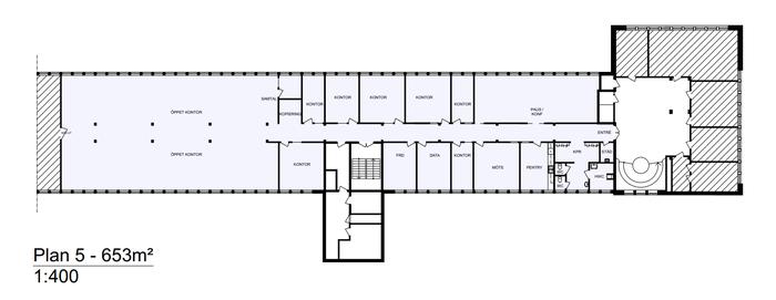
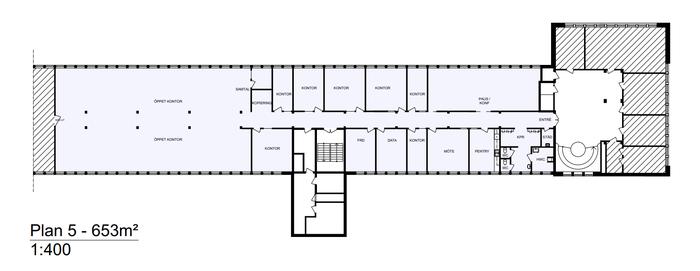
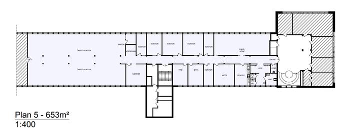
Övrigt, 653 m2, Stockholm, Bromma

Stor industrifastighet intill Bromma Flygplats.

Omgivning

I direkt anslutning till Bromma Flygplats.Garageplats. Går att hyra.
Parkeringsplats. Går att hyra.

Kommunikationer

10 min gångavstånd till Brommaplan med bussar och T-bana

Kontakta Annonsör

Ulric von Celsing

Ulric von Celsing