Kungsgatan 29

Kontor/Övrigt, 80 - 263 m2, Stockholm, Stockholm CBD

Hyra: Kontakta lokalförmedlaren för mer info.

Hyr två intilliggande lokaler om ca 80 kvm respektive 183 kvm med entréer från Kungsgatan 29, Oxtorget 4 samt innergården med access från Oxtorget!

Bra logistiskt läge i huset för leveranser!

Den ena lokalen om ca 80 kvm hyrs ut i helt nyrenoverat skick. Förslagsvis kan den lokalen kunna nyttjas som möteslokal och den intilliggande lokalen om ca 183 kvm som kontor för medarbetarna. Det är smidigt att gå mellan lokalerna då båda lokalerna har entrédörrar precis mitt emot varandra i portalen mellan Oxtorget och innergården.

Fastigheten
Huset uppfördes år 1928 och renoverades år 1989.
Huvudentrén är Kungsgatan 29 och härifrån finns en personhiss. Det är även möjligt att använda entrén vid Oxtorget 4 där det är lättare att stanna till för leveranser och en smidig inflytt Innergård med cykelställ finns.

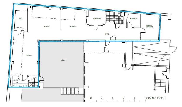
PLANLÖSNING:

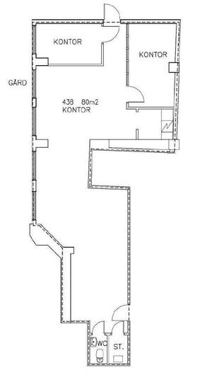
Lokal om ca 80 kvm:
Lokalytan fördelas på en välkomnande entré med plats för väntande besök, en öppen kontorsyta med plats för 6-7 arbetsplatser, ett konferensrum för 6-8 personer samt ett mindre arbetsrum för en person vilket även kan nyttjas som ett extra samtalsrum. Lokalen har också ett trevligt litet pentry som är utrustat med diskmaskin och två kokplattor, städförråd med vask samt wc Lokalen är helt nyrenoverat med vitmålade väggar, nålfiltsmatta samt nytt glasparti mot konferensrummet som gör det lilla extra. Takhöjden är bevarad och har inte sänkts med akustikplattor.

Lokalen har två entrémöjligheter, huvudentrén är Kungsgatan 29 och härifrån’ finns hiss upp till plan 3 där lokalen är belägen. Det är även möjligt att använda sig av entrén vid Oxtorget 4 alternativt entrén i portalen mot innergården.


Lokal om ca 183 kvm:
Lokalen har en öppen planlösning där samtliga kvadratmetrar nyttjas effektivt. Det finns en välkomnande entré med plats för avhängning och ett par väntande besökare. Direkt till höger finns ett arbetsrum för ca 3 personer vilket även kan nyttjas som ett extra mötesrum. I nära anslutning till entrén finns två mötesrum samt den rymligare av lokalens två wc med grått klinkergolv och dusch.

Den övriga ytan utgörs av öppet kontorslandskap med fysisk plats för totalt ca 20 arbetsplatser. Ytan har delvis avdelats med en vägg, så det öppna landskapet är utgörs av tre enheter med fysisk plats för ca 5 arbetsplatser, ca 7 arbetsplatser respektive ca 8 arbetsplatser.

Vägg i vägg med den innersta kontorsytan kommer det nybyggda pentryt placeras och längst in finns en mindre wc. I lokalen finns även ett rymligt serverrum/förråd.

Hyresgästen till denna lokal har en egen utgång direkt mot innergården vilket ger ett mervärde då lokalen upplevs som ett alldeles eget gårdshus.

Ventilation:Mekanisk till- och frånluft.

Bredband:Fiber och nätverk finns indraget i lokalen via Open Universe.

Det går självklart att hyra endast en av lokalerna.

Omgivning

Omgivning/natur:

Hötorget med livlig torghandel och Stureplan.

Parkeringsmöjligheter/garage:

Goda parkeringsmöjligheter i intilliggande p-garage i exempelvis Oxtorgsgaraget, Hötorgsgaraget och David Bagares Garage.

Planlösning

Byggår:

1928

Renoveringsår:

1989

Våningsplan:

3

Kommunikationer

Det kommunikativa läget är svårslaget. med kort gångavstånd till t-banestationerna Hötorget, Östermalms Torg och T-centralen. En mängd busslinjer trafikerar närområdet och 1:ans buss passerar strax utanför porten. Det är även gångavstånd till Stockholms Centralstation som är Stockholms bästa och viktigaste kommunikativa knytpunkt. Här avgår samtliga t-banelinjer, fjärrtåg, långfärdsbussar, flygbussar samt även Arlanda Express.

Service

Närservice:

Adressen säger allt! Här finns all service Du kan önska Dig. Inom kort gångavstånd har du ett stort utbud av restauranger, caféer, apotek, systembolag, gallerior och butiker med alla tänkbara shoppingmöjligheter längs efter Kungsgatan.

Övrigt

Övrigt:

Hyresvärden har fri prövningsrätt vad gäller val av hyresgäst och verksamhet. Vänligen respektera att all kontakt och visningar skall ske via lokalförmedlaren enligt hyresvärdens önskemål.

Hiss:

Ja

Tillträde:

Enligt överenskommelse.

Hyresinformation:

Kontakta lokalförmedlaren för mer info.

Kontakta Annonsör

Hanna Friman

Hanna Friman