Dokument

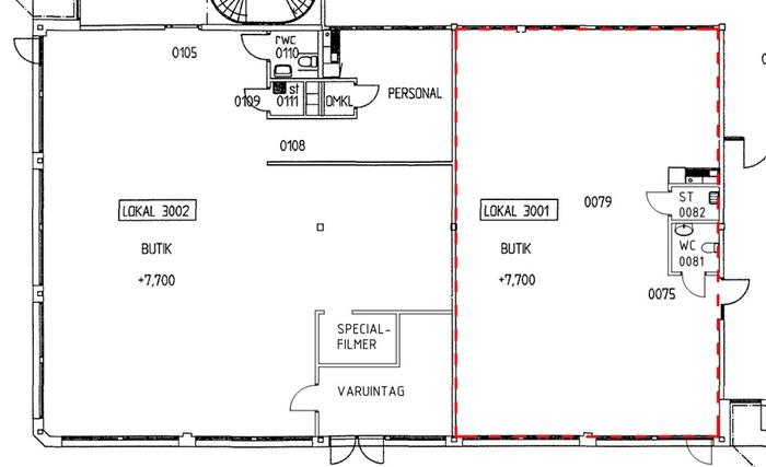
Ritning

Kung Hans väg 12

Övrigt, 140 - 354 m2, Stockholm, Sollentuna

Ta chansen att etablera din verksamhet på denna strategiska plats och bli en del av det växande affärs- och vårdsektorn i Rotebro!
Egenskaper:
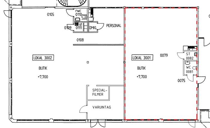
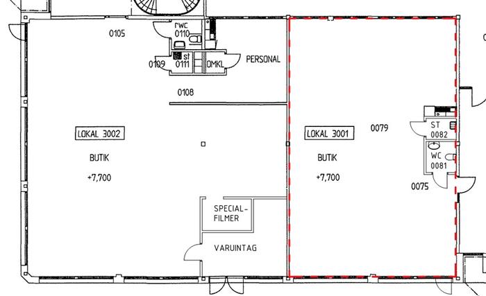
Modularea: fr. 140 kvm till 354 kvm.
Läge: Beläget vid Rotebro Pendelstation, med enkel tillgång till kollektivtrafik och hög fottrafik.

Skyltfönster: Stora skyltfönster ger möjlighet till effektiv marknadsföring och exponering av din verksamhet.

Renoveringsbehov: Låt din kreativitet flöda med möjligheten till anpassning och renovering för att skapa den perfekta butiksmiljön.

Icke-matvaruhandel: Med andra ord, en perfekt plats för en rad olika verksamheter som gärna kompletterar utbudet i fastigheten.

Närhet till andra aktörer: vårdcentral, BVC, BUUM, gym, apoteket och hörselmottagning skapar en dynamisk och mångsidig miljö.

Denna butikslokal är idealisk för en verksamhet som vill dra nytta av det höga fottrafikflödet från pendeltågsstationen och samtidigt komplettera det omfattande utbudet av vårdtjänster i området.

Omgivning

Närhet till andra aktörer: vårdcentral, BVC, BUUM, gym, apoteket och hörselmottagning

Kommunikationer

Beläget vid Rotebro Pendelstation, med enkel tillgång till kollektivtrafik och hög fottrafik.

Övrigt

Fastpartner är ett börsnoterat fastighetsbolag som äger och förvaltar fastigheter långsiktigt med egen personal. Vår affärsidé är att skapa goda och långvariga relationer med våra hyresgäster genom att vara lyhörda för våra hyresgästers önskemål samt engagerade i förvaltningen och utvecklingen av våra fastigheter. Vårt fastighetsbestånd är koncentrerat till Stockholm, men vi har också lokaler på ett flertal expansiva orter i Sverige, bla Göteborg, Malmö, Norrköping, Uppsala och Gävle. Vi tycker det är kul att arbeta med den tekniska utvecklingen av våra fastigheter. Vi ser att det både finns en vinning för miljön och plånboken i att vara en engagerad hyresvärd. Vår organisation genomsyras av en entreprenörsanda och har korta beslutsvägar vilket uppskattas av våra hyresgäster. Välkommen till Fastpartner!

Kontakta Annonsör

Lisa Akuetteh

Lisa Akuetteh