Erik Dahlbergsgatan 36
Gärdet, Stockholm, 70 - 74 m2
Lagerlokal i bästa läge på nedre Gärdet finns nu tillgänglig! Bra lastaccess för mindre lastbilar. Lokalen kan passa utmärkt för...
Kontor/Övrigt, 82 m2, Stockholm, Gärdet
Hyra: Kontakta lokalförmedlaren för mer info.
Lokalen hyrs ut i nyproduktionsskick från att varit helt stomren. Ingen överlåtelsesavgift utgår!
En utmärkt lokal för kontorsverksamhet och showroom eller varför inte en kombination av båda? Lokalens stora skyltfönster erbjuder möjligheten att exponera sin verksamhet eller ett varumärke för förbipasserande.
Fastigheten
Huset färdigställdes år 1935.
Om lokalen
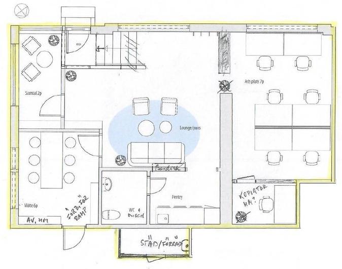
Lokalen byggs upp från grunden med den planlösning som ritningen i annonsen visar. Lokalarean fördelas fyra rum, två kontorsrum som kan inredas som kontorslandskap samt två tänkta som mötes- respektive samtalsrum. Ett nytt pentry kommer att utrustas med 2 mikrovågsugnar och diskmaskin. I WC kommer en dusch med vikväggar att installeras och det kommer att bli en vägghängd toalett. Längst in i lokalen finns ett litet förråd/maskinrum och i en anslutande lagerlokal byggs ett städförråd.
Takhöjd:ca 2.93 M.
Bredband:Fiber finns indraget via Telia och Stokab finns anslutet till fastigheten.
Lugnt och trivsamt område med fin natur så som närhet t till Ladugårdsgärdets fridfulla strövområden. Förflyttar du dig ytterligare en bit bort så har Du Kungliga Djurgården framför Dina fötter med fina promenadstråk.
Parkeringsmöjligheter/garage:På intilliggande gator och parkeringshus, exempelvis Q-park vid Fältöversten och Stockholms Parkering har ett parkeringshus på Östermalmsgatan 48 med endast är några månaders kötid. Det är relativt lätt att hitta lediga platser utomhus längs Valhallavägens Allé med avgift enligt stadens tariff.
Skyltläge:Lokalens stora skyltfönster erbjuder möjligheten att exponera sin verksamhet eller ett varumärke för förbipasserande.
1935
Mycket bra kommunikationer med gångavstånd till tunnelbanestationerna Stadion, Karlaplan och Gärdet. Flera busslinjer trafikerar området. För bilister finns nära anslutning till E4:an.
Det geografiska läget erbjuder ett utmärkt serviceutbud för företaget som värdesätter effektivitet och bekvämlighet. Här finns allt inom räckhåll - från banker, postombud, kontorsservice till restauranger, caféer och butiker som underlättar vardagen. Inom några minuters promenad ligger Fältöverstens galleria samt Östermalmstorg och Karlaplan med ett stort utbud av butiker, restauranger, caféer, Systembolaget etc. Adressen är ett bra val för företaget som vill kombinera ett strategiskt läge med tillgång till all nödvändig service.
Föreningen har fri prövningsrätt vad gäller val av hyresgäst och verksamhet. Vänligen respektera föreningens önskemål om att all kontakt och visningar skall ske via mäklaren.
Takhöjd:2,93 m
Tillträde:Tillträde kan ske enligt överenskommelse.
Hyresinformation:Kontakta lokalförmedlaren för mer info.