Dokument

Ritningsförslag

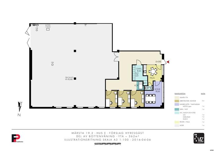
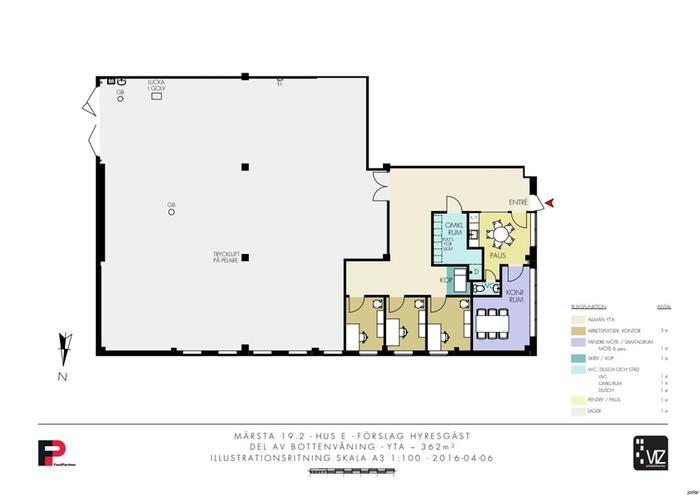
Bristagatan 18A

Övrigt, 362 m2, Stockholm, Arlandastad

Lokalen iordningsställs efter önskemål.
Lokalens takhöjd är ca 3,4 meter.
Lastport finns.På fastigheten finns byggnader för lager och industri samt kontor.

Omgivning

Brista industriområde i Arlandastad ligger mellan E4 och Märsta Centrum i Stockholm. Området präglas av företagande inom framförallt lager och logistik, lättare industri och produktion. Här finns också hotell, restauranger och golfbana.I direkt anslutning till fastigheten finns parkeringsplatser att förhyra.

Kommunikationer

Fastigheten är enkel att ta sig till via diverse kommunikationsmedel och ligger endast minuter från E4-avfarten Arlandastad/Märsta. Med bil tar det ca 12 minuter till Upplands Väsby, 20 minuter till Uppsala, samt 30 minuter till Stockholms city.

Service

I Märsta centrum, någon minut bort, finns ett 30-tal butiker och restauranger.

Övrigt

FastPartner arbetar långsiktigt med att äga och förvalta fastigheter i Sveriges mest expansiva regioner. Vi är sedan 1994 noterade på Nasdaqs MidCap-lista och förvaltar idag mer än 1,2 miljoner kvadratmeter lokalyta. Vår ambition är att vara en smidig och effektiv partner för företag som vill utveckla sin verksamhet.

Kontakta Annonsör

Andreas Ågren

Andreas Ågren