Du kan se dina sparade lokaler genom att klicka på "Sparade lokaler" i menyn högst upp.
Bristagatan 16C
Övrigt,
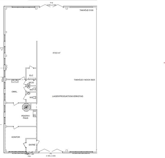
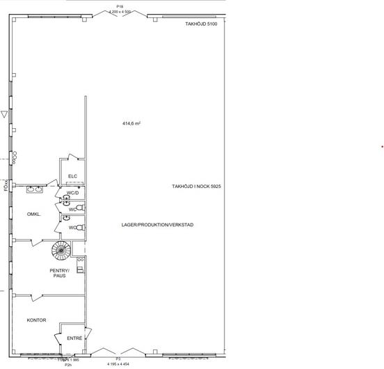
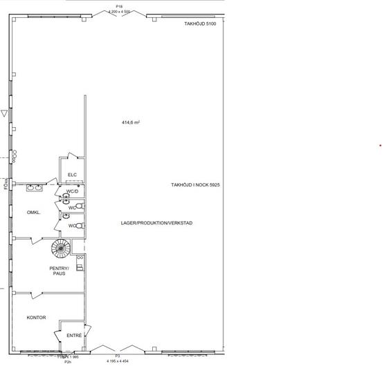
414 m2,
Stockholm, Arlandastad
Välkommen till en helt nyrenoverad och flexibel lokal i Arlandastad perfekt för lager, lätt produktion eller verkstadsverksamhet. Lokalen omfattar totalt 414,6 kvm och har en generös takhöjd om 5 till 5,9 meter, vilket ger goda möjligheter för effektiv förvaring eller produktionsutrustning.
Lokalen är utrustad med två stora portar, placerade på varsin sida av byggnaden (ca 4,2 x 4,5 meter), vilket underlättar smidiga in- och utlastningar. Det finns enligt ritning plats för WC, omklädningsrum, kontor och pentry/personalutrymme men som hyresgäst har du möjlighet att påverka utformningen av dessa ytor så att de passar just din verksamhets behov.
Fastigheten ligger på Bristagatan 16C, mitt i det växande företagsområdet Arlandastad, med närhet till E4:an, Märsta och Arlanda flygplats. Området erbjuder god tillgänglighet för både personbilar och lastbilstransporter. Det finns även parkeringsplatser att hyra i direkt anslutning till lokalen.
Detta är en flexibel och välbelägen lokal som lämpar sig för många typer av verksamheter som söker moderna och praktiska ytor med hög tillgänglighet.
Välkommen att boka en visning!På fastigheten finns byggnader för lager och industri samt kontor.
Omgivning
Centralt belägen fastighet i verksamhetsområdet.Parkeringsplatser finns att hyra.
Kommunikationer
Goda kommunikationer till Märsta Centrum och Pendeltåg (Märsta Station), E4 nås på 3 minuter med bil.
Service
I området och i Märsta Centrum
Övrigt
FastPartner arbetar långsiktigt med att äga och förvalta fastigheter i Sveriges mest expansiva regioner. Vi är sedan 1994 noterade på Nasdaqs MidCap-lista och förvaltar idag mer än 1,2 miljoner kvadratmeter lokalyta. Vår ambition är att vara en smidig och effektiv partner för företag som vill utveckla sin verksamhet.