Du kan se dina sparade lokaler genom att klicka på "Sparade lokaler" i menyn högst upp.
Bristagatan 16B
Övrigt,
421 m2,
Stockholm, Arlandastad
Välkommen till en mångsidig lokal om totalt 421 kvm på Bristagatan 16B i Arlandastad ett strategiskt läge med närhet till både E4:an, Märsta och Arlanda flygplats.
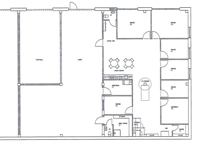
Lokalen är fördelad på en lagerdel med god takhöjd, egen WC och lagerportar för smidig in- och utlastning, samt en kontorsdel med mötesrum, pentry och personalutrymmen.
Kontorsdelen har dessutom en separat kundentré med jalusi, vilket gör lokalen särskilt lämplig även som servicelokal, exempelvis för hämtningsservice, kundmottagning eller annan serviceinriktad verksamhet.
Tack vare den genomtänkta planlösningen passar lokalen för flera olika användningsområden från lagerhållning och lättare produktion till kombinerad kontors- och servicelokal.
Välkommen att boka visning!På fastigheten finns byggnader för lager och industri samt kontor.
Omgivning
Centralt belägen fastighet i arbetsområdet.Parkeringsplats. Går att hyra.
Kommunikationer
Goda kommunikationer till Märsta Centrum och Pendeltåg (Märsta Station), E4 nås på 3 minuter med bil.
Övrigt
FastPartner arbetar långsiktigt med att äga och förvalta fastigheter i Sveriges mest expansiva regioner. Vi är sedan 1994 noterade på Nasdaqs MidCap-lista och förvaltar idag mer än 1,2 miljoner kvadratmeter lokalyta. Vår ambition är att vara en smidig och effektiv partner för företag som vill utveckla sin verksamhet.