Dokument

Ritning

Rattvägen 4

Övrigt, 1350 m2, Nyköping

Hyra: Kontakta annonsören

Utmärkt och effektiv lagerlokal uthyres i Arnö
Nu finns möjligheten att hyra en fantastisk lokal ämnad för lager & logistik i industriområdet Arnö. Byggnaden är uppförd år 2020 med en tomtyta motsvarande 15 500 m². Fastighetens läge och storlek erbjuder utmärkta förutsättningar för att kunna bedriva en effektiv logistikverksamhet. Den totala arean om 1 350 m² är fördelad på lagerutrymmen, tvätthall och verkstadsytor. I byggnaden finns två separata utrymmen med markportar som är avsedda för tvätthallen och verkstaden. Fastigheten är fullt stängslad med en elektrisk grind.

Grundfakta:
- 7 lasthus
- Takhöjd 7,4m upp till balk
- Brandlarm
- FTX Ventilation

Vidare finns det möjlighet att hyra ett tält på fastigheten motsvarande en area om 200 m².
Eventuella anpassningar kan göras i samråd med fastighetsägaren.

Lokalen är tillgänglig omgående, kontakta oss gärna för en visning!

Omgivning

Omgivning/natur:

Arnö industriområde en av Nyköpings nyare verksamhetsområden med närhet till viktiga transportnoder - endast fem minuter till E4:an, 15 minuter från Stockholm Skavsta flygplats och en isfri djuphamn. Här finns etablerade företag som Hedin Parts och X Shore.

Parkeringsmöjligheter/garage:

Fastigheten erbjuder utmärkta parkeringsmöjligheter.

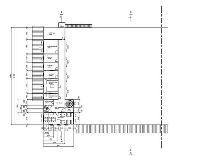
Planlösning

Byggår:

2020

Våningsplan:

1

Övrigt

Tillträde:

Enligt överenskommelse

Kontakta Annonsör

Enes Alic

Enes Alic