Kantatgatan 46

Övrigt, 77 m2, Malmö, Fosie

Hyra: Kontakta annonsören

Upptäck Ditt Drömutrymme: Ljus, Rymlig och Perfekt För Din Hobby!
Upptäck Ditt Drömutrymme: Ljus, Rymlig och Perfekt För Din Hobby!
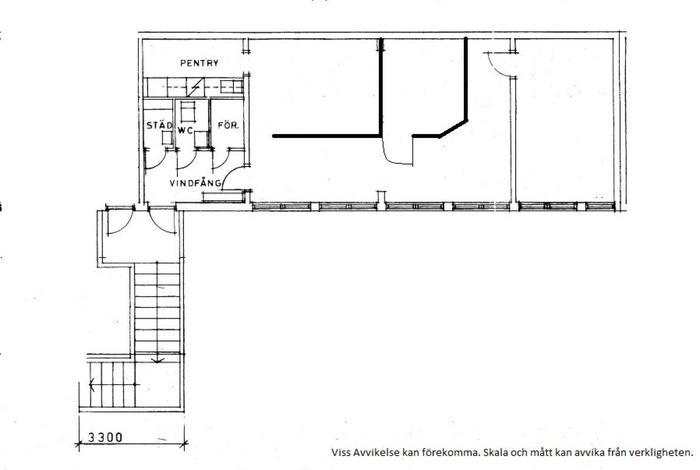
Här finns områdets mest moderna hobbylokal. Med en separat ingång en trappa ner presenteras en ljus lokal på 77 kvm. Lokalen är komplett med bekvämligheter som toalett, pentry och två separata rum. Vid pentryt finns en sittplats där du kan avnjuta din måltid. Trots att lokalen befinner sig i källarplanet är den ljus och behaglig att vistas i.

Hyra: Från 5 199 kr/mån exkl. moms

Kontakta oss för en visning och låt denna unika lokal bli platsen där din hobbyverksamhet blomstrar!

Fastighet & kvarteret
Välkommen till fastigheten Kantaten 6 - en ikonisk tegel fastighet från 70-talet som erbjuder en unik kombination av bostäder och några utvalda lokaler på bottenvåningen.

Belägen i det charmiga bostadsområdet Lindängen, i Malmös stadsdel Fosie, erbjuder Kantaten inte bara en tidlös arkitektur utan även närhet till härliga naturområden. Detta ger boende och verksamheter en möjlighet att njuta av en harmonisk atmosfär med grönska och natursköna platser runt hörnet.

Övrigt
Tillträde: Enligt överenskommelse
Hyra: Från 5 199 kr/mån exkl. moms
Byggår: 1970
Yta lokal: 77 kvm
Våningsplan: Källarplan
Fastighetstyp: Bostadsfastighet med fåtal källarlokaler
Område: Fosie/Lindängen
Avstånd till buss: ca. 200 meter

Kommunikation & service
Med flera busslinjer som trafikerar området finns det många alternativ för en enkel och stressfri resa. Välj mellan busslinjerna 2, 8, 31, 33 eller buss 170 för din dagliga färd. Buss 8, 33 och 170 stannar nära Lindängensbiblioteket och hållplatsen heter ”Malmö Lindängen”.

Vill du hellre ta bilen är tillgängligheten bra och det finns flera parkeringar i området.

Lindängen centrum, en stenkast bort, erbjuder en mångfald av bekvämligheter såsom Framtidens hus, matbutiker och Returen. I närheten finns också bibliotek och restauranger, vilket ger dig tillgång till en rik variation av möjligheter.

Välkommen till en plats där resor är enkla och allt du behöver är inom räckhåll.
Tillträde:

Enligt överenskommelser

Kontakta Annonsör

Emmie Ekholm

Emmie Ekholm