Kosterögatan 15
Östra Hamnen, Malmö, 384 m2
Kontorslokal med karaktär i Tobaksfabriken, Malmö Ljus och representativ kontorslokali den välkändaTobaksfabrikeni Malmö. Lokalen erbjuder en inspirerande arbetsmiljö i enkaraktärsfull...
Dokument
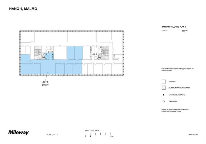
Ritning - Mileway - Hanö 1_Unit 5.pdfKontor/Övrigt, 206 m2, Malmö, Östra Hamnen
Hyra: Kontakta annonsören
Nu finns möjlighet att hyra en ljus och modern kontorslokal om 206 kvm, belägen på plan tre i en representativ fastighet med närhet till Malmö centrum. Lokalen har en genomtänkt planlösning med en kombination av öppna ytor och separata kontorsrum.
Här erbjuds fräscha ytor i gott skick med pentry, WC och mötesrum. Lokalen är flexibel och kan anpassas för att möta just din verksamhets behov - oavsett om ni söker ett effektivt kontor för ett mindre team eller plats för en växande organisation.
Läget är lättillgängligt med enkel infart direkt från Västkustvägen och goda parkeringsmöjligheter i direkt anslutning till fastigheten. Möjlighet finns även att installera laddstolpar vid behov.
Området - Östra Hamnen
Östra hamnen är ett utbrett och väletablerat industriområde på centralt läge vid stadens norra infartsleder, endast 3 km norr om centrala Malmö. Här finns goda transportförbindelser via Västkustvägen vidare till Inre Ringvägen, E6/E20 och E22. Området präglas av lättindustri samt lager- och logistikverksamheter och det erbjuds ett enklare serviceutbud av handel och lunchrestauranger. Det finns goda kollektivtrafikförbindelser med buss till centrala Malmö.
Cargobike of Sweden, INR Försäljning Sverige AB, Bluebox.se, Exakta Print AB och Bring
Parkeringsmöjligheter/garage:Parkering på fastigheten, goda förutsättningar för att installera laddstolpar för elbilsladdning
Vägbeskrivning:Nära anslutning till Inre Ringvägen, E6/E20 och E22
Hanö 1
Byggår:1968
Renoveringsår:2011
Våningsplan:3 av 3
Planlösning:Se bilder/PDF.
Goda kollektivtrafikförbindelser med buss till centrala Malmö
Enklare serviceutbud av handel och lunchrestauranger i närområdet
Trapphus med hiss
Hiss:Ja
Kontraktlängd:Förhandlingsbart
Kontrakttyp:Förstahandskontrakt
Tillträde:Omgående