Ivarshyttevägen 6

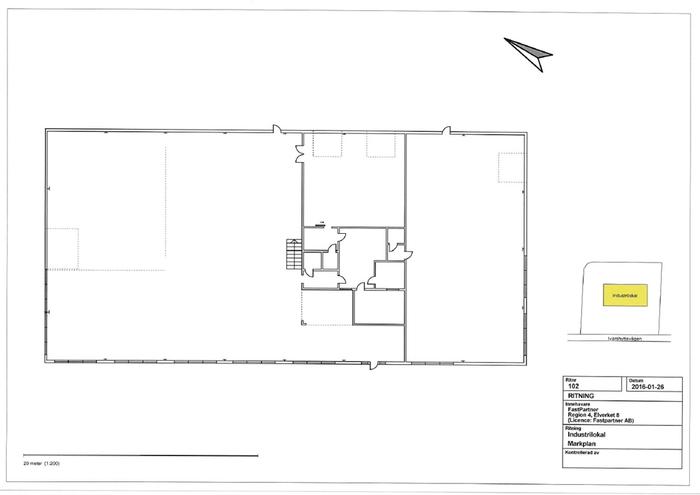
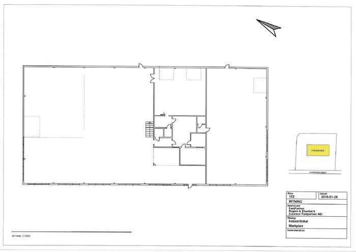
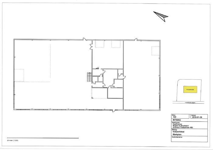
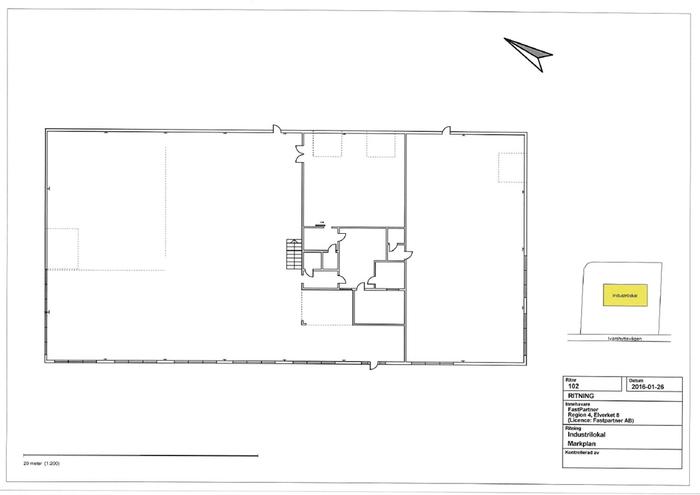
Övrigt, 788 m2, Hedemora

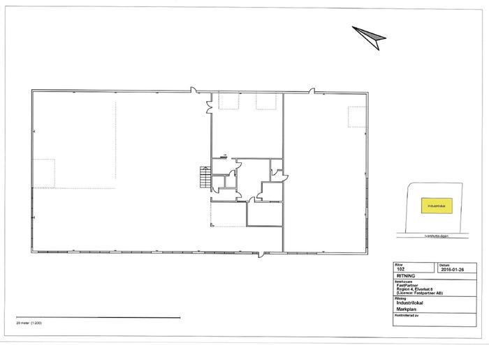
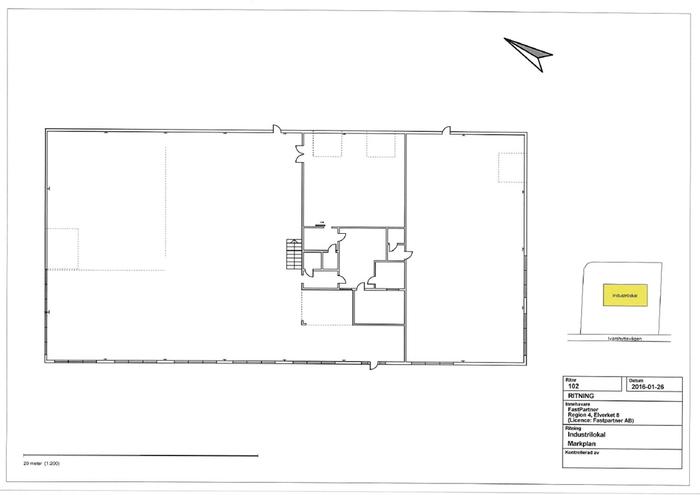
En lokal som är perfekt för butik eller lagerverksamhet. Bra skyltläge vid Ivarshyttevägen. Lokalen har attraktiva grannar som drar många människor till området.Bra funktionell fastighet i ett plan med goda rangerytor.

Omgivning

I Hedemoras bästa verksamhetsområdeJa

Service

Nära centrum

Övrigt

Fastpartner är ett börsnoterat fastighetsbolag som äger och förvaltar fastigheter långsiktigt med egen personal. Vår affärsidé är att skapa goda och långvariga relationer med våra hyresgäster genom att vara lyhörda för våra hyresgästers önskemål samt engagerade i förvaltningen och utvecklingen av våra fastigheter. Vårt fastighetsbestånd är koncentrerat till Stockholm, men vi har också lokaler på ett flertal expansiva orter i Sverige, bla Göteborg, Malmö, Norrköping, Uppsala och Gävle. Vi tycker det är kul att arbeta med den tekniska utvecklingen av våra fastigheter. Vi ser att det både finns en vinning för miljön och plånboken i att vara en engagerad hyresvärd. Vår organisation genomsyras av en entreprenörsanda och har korta beslutsvägar vilket uppskattas av våra hyresgäster. Välkommen till Fastpartner!

Kontakta Annonsör

Joakim Delin

Joakim Delin