Dokument

Planskiss

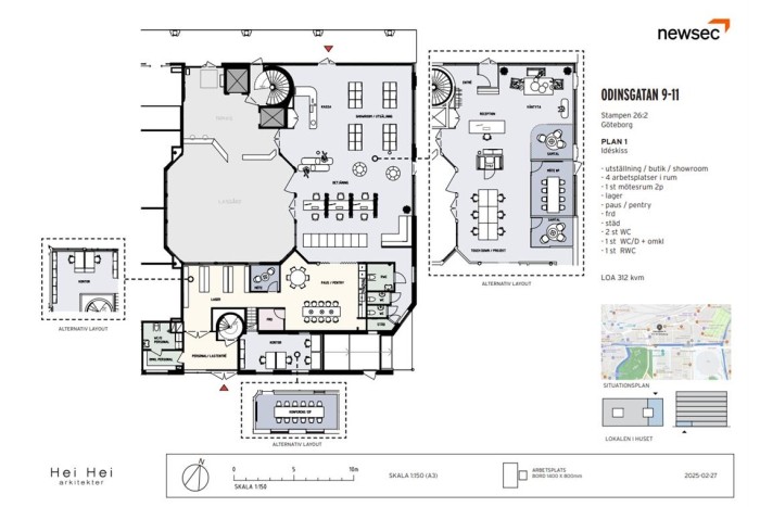
Odinsgatan 11

Butik/Kontor/Övrigt, 312 m2, Göteborg, Stampen

Hyra: 2500 kr/kvm/år

Butiksplan med stora fönster, separat personalentré med omklädning och dusch

Representativ och flexibel lokal med industriell känsla, ett stenkast från Centralstationen och Rättscentrum

Nu har vi glädjen att erbjuda en modern och representativ lokal med en industriell känsla, belägen på ett fantastiskt läge, bara ett stenkast från Centralstationen och Rättscentrum. Lokalen är idag helt utriven, vilket ger dig stora möjligheter att anpassa layouten efter just din verksamhets behov och skapa en unik destination.

Lokalen passar för en rad olika verksamheter, från en arkitekt- eller mäklarbyrå till butik, showroom eller kanske en upplevelsebaserad verksamhet som ett escape room eller liknande. De flexibla ytorna ger stora möjligheter att skapa den miljö och funktionalitet som passar just din affärsmodell.

En särskild fördel med denna lokal är den separata personalentrén som ger smidig tillgång till omklädningsrum och duschmöjligheter. Här finns även ett mindre lager-/förrådsutrymme som kan användas för förvaring. Huvudingången från gatan ger bra synlighet och exponering, medan den separata personalentrén gör det enkelt att separera kund- och personalflöde.

För de som behöver snabb tillgång till lokalen finns gott om parkeringsmöjligheter precis utanför, vilket gör det enkelt att snabbt lasta av och på. För längre parkering finns även garageparkering att tillgå. Cykelparkering finns också i garaget för den som föredrar att ta cykeln till jobbet.

Lokalen är rymlig med bra takhöjd och ett generöst ljusinsläpp tack vare många stora fönster, vilket skapar en ljus och inbjudande arbetsmiljö. Här finns även utrymme för konferensrum och spontana möten. Lokalen erbjuder också ett väl tilltaget lunchrum och flera toaletter för bekvämlighetens skull.

Observera att den bifogade planskissen är ett förslag tillsammans tar vi fram en layout som passar just er verksamhet och behov.

Välkommen att ta nästa steg och forma er framtida arbetsmiljö i denna flexibla och attraktiva lokal!

Omgivning

Odinsgatan/Friggagatan är ett av Göteborgs första blandstadsområden, där moderna kontorsbyggnader möter nybyggda bostadshus, vilket skapar en dynamisk och livfull stadsbild. Området har ett brett utbud av butiker, caféer och restauranger, vilket gör det till ett populärt val för både arbetspendlare och boende.

Odinsplatsen är en härlig oas mitt i staden, med sitt gatukök, parbänkar och grönskande parkmiljö. Här kan man slå sig ner med sin lunchlåda, ta en kaffe eller njuta av en svalkande glass när vädret tillåter. Denna kombination av stadsutveckling och naturnära miljöer gör området till ett attraktivt och trivsamt ställe för både arbete och fritid.

Planlösning

Lokalen erbjuder en flexibel planlösning med flera funktionella ytor. Här finns bland annat hela fyra toaletter, varav en är utrustad med dusch.
Det finns också ett rymligt pentryområde, som kan anpassas beroende på behov antingen som ett separat utrymme för personalen eller som en kombinerad lösning som fungerar både för personal och kunder, vilket skapar en mer representativ yta.

I anslutning till pentryt finns en charmig trappa som leder upp till ett rum som kan användas som arbetsplatser eller konferensrum. Denna del av lokalen ger möjligheter till avskildhet för möten eller kreativt arbete.

Eftersom lokalen är helt utriven har vi endast tagit fram förslag på layouten, vilket ger stora möjligheter att anpassa och påverka planlösningen för att skapa just er drömdestination.

Tillsammans kan vi utforma en lösning som passar perfekt för er verksamhet.

Kommunikationer

Fastigheten är perfekt belägen, endast 250 meter gångväg från Centralstationen, som är regionens största knytpunkt för tåg och bussar.

Samma avstånd tar er till Drottningtorget, där ett flertal spårvagns- och busslinjer förbinder alla delar av Göteborg. I motsatt riktning hittar ni Svingeln, där ytterligare spårvagnar trafikerar området.
Med dessa centrala kommunikationsmöjligheter är fastigheten lättillgänglig både för pendling och lokaltrafik.

Service

Fastigheten är perfekt belägen, endast 250 meter gångväg från Centralstationen, som är regionens största knytpunkt för tåg och bussar.

Samma avstånd tar er till Drottningtorget, där ett flertal spårvagns- och busslinjer förbinder alla delar av Göteborg. I motsatt riktning hittar ni Svingeln, där ytterligare spårvagnar trafikerar området.
Med dessa centrala kommunikationsmöjligheter är fastigheten lättillgänglig både för pendling och lokaltrafik.

Kontakta Annonsör

Sara Mannerström

Sara Mannerström