Dokument

Kobbegården 6-136_Planritning.pdf

Datavägen 25

Kontor/Övrigt, 339 - 727 m2, Göteborg, Askim

Hyra: Kontakta annonsören

Anpassningsbara kontorslokaler i expansiva Sisjön - upp till 727 kvm

Nu finns möjlighet att hyra flexibla och rymliga kontorslokaler på attraktiv adress i Sisjön - ett av Göteborgs mest dynamiska företagsområden. Lokalerna är fördelade på två plan med totalt727 kvmoch erbjudermycket goda anpassningsmöjligheterefter verksamhetens behov.

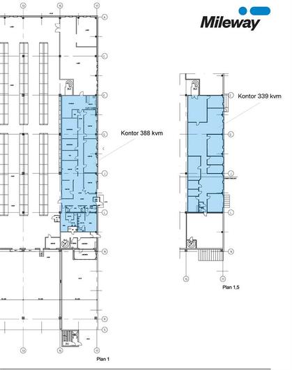
Ytorna består av388 kvm på bottenplan (plan 1)och339 kvm en trappa upp (plan 1,5). De kan hyrastillsammans eller separat, tack vareegna entréer för varje våningsplan. Planlösningen är blandad medkontorsrum i varierande storlekar,konferensrumsamt faciliteter somkök, WC och omklädningsrum. Lokalerna passar lika bra för traditionell kontorsverksamhet som för konsultverksamhet, showroom eller kundmottagning.

Parkering finns kostnadsfritt på fastigheten.

Etablerat företagsområde med bästa logistikläge

Fastigheten är belägen påDatavägen 25 i Askim, en adress med flera etablerade företag. Läget mitt iSisjöns industri- och handelsområdeerbjudersnabb access till E6, Söderleden och centrala Göteborg- vilket gör området särskilt attraktivt för verksamheter med behov av god logistik och hög tillgänglighet. Här finns också ett brett serviceutbud med handel, lunchrestauranger, träningsanläggningar och närhet till köpcentrum 421.

Goda kollektivtrafikförbindelsergör det enkelt att ta sig hit för både medarbetare och besökare.

Kontakta oss gärna för mer information eller för att boka en visning!

Omgivning

Företag i närheten:

Gamo Gasol, Ramirent, Calectro och Ryds Bilglas

Parkeringsmöjligheter/garage:

Fri parkering i anslutning till lokalen

Vägbeskrivning:

Nära anslutning till Söderleden och E6

Planlösning

Fastighetsbeteckning:

Kobbegården 6:136

Byggår:

1980

Planlösning:

Se planlösning bland bilder eller ladda ned PDF.

Kommunikationer

Goda kollektivtrafikförbindelser till centrala Göteborg med omnejd

Service

Närservice:

Brett serviceutbud i närområdet med Sisjöns handelsplats, restauranger, butiker, gym samt Köpcentrum 421

Övrigt

Lokalen kan nås via:

Egen entré

Kontraktlängd:

Förhandlingsbart

Kontrakttyp:

Förstahandskontrakt

Tillträde:

Omgående.

Kontakta Annonsör

Caroline Klamas

Caroline Klamas