Butik/Industri/Övrigt,
500 m2,
Boden
Öppen och anpassningsbar lokal en halv trappa ner. Lokalen nyttjas idag som butik. Personalutrymmen med omklädning och bastu. Varuhiss och personhiss finns.
Goda parkeringsmöjligheter både för personal och kunder.
Omgivning
Grannar till fastigheten är bl.a. Bilbolaget, Besikta och EM Home.
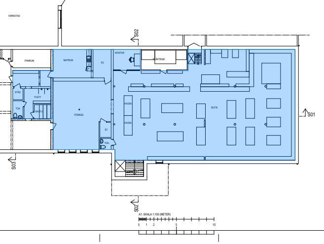
Planlösning
Planlösningen i annonsen visar hur lokalen ser ut idag men vi anpassar gärna efter ert behov.
Kommunikationer
Fastigheten ligger ca 200 m från Lulevägen med goda bussförbindelser.