Tillbaka
Industri/Kontor/Lager, Borås, Viared, 150 - 4099 m2

Ödegärdsgatan 6

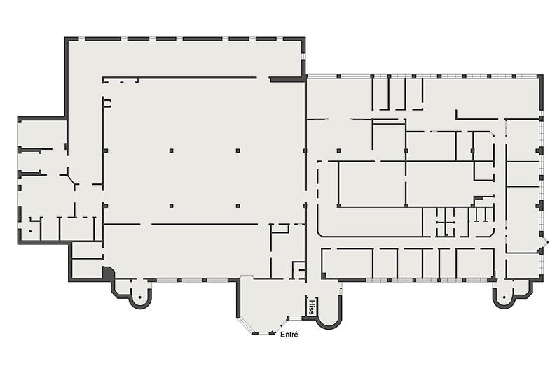
Moderna, prisvärda kontorslokaler uthyres i attraktiva Viared, Borås. Nu finns möjlighet att hyra hela eller delar av kontorslokaler om ca 3 503 m² och produktionshall om ca 600 m² med bästa läge i Viared. Kontorsytor från 150 - 3 503 m² Produktion/lageryta 596 m² Entreplan, 150 m² kontorsyta. Våning 2, 1790 m² kontorsyta. Våning 3, 1100 m² kontorsyta. Våning 4, 463 m² kontorsyta. Markplan, 596 m² Lager / Produktionsyta med 2 kontor, lunchrum och lastbrygga. Huset med egen entré ligger närmast motorvägen i anslutning till Ellos. Fyra våningar med central hiss och en underbar vinterträdgård i mitten av huset. Här finns gott om p-platser i direkt anslutning, lunchrestaurangen nås med en kort inomhuspromenad, vinterträdgården uppmuntrar till inspirerande möten, på varje våning finns köksutrustade lunchrum, konferensrum och gott om kontor. Kodlåsta dörrar finns för ev. avgränsning av våning. Väldigt bra kommunikationer vid arbetstidens början och slut. Välkommen att höra av er för mer info och ett besök. Med vänlig hälsning, Ove Bornelund 033-430 33 18 073-335 80 08 [email protected]

Omgivning

Viared har de senaste åren expanderat kraftigt tack vare sitt strategiska läge och sina attraktiva tomter. I första hand har stora distributions- och logistikföretag lockats till Viared. Närheten till riksväg 40, Göte­borg Landvetter Airport och Göteborgs hamn gör området perfekt för både kontor och logistik.

Dela på linkedIn

Kontaktinformation

Ove Bornelund Ove Bornelund
033-4303318
073-3358008
[email protected]
Skandiamäklarna Borås Skandiamäklarna Borås
skandiamaklarna.se
Objekt-id: 280302